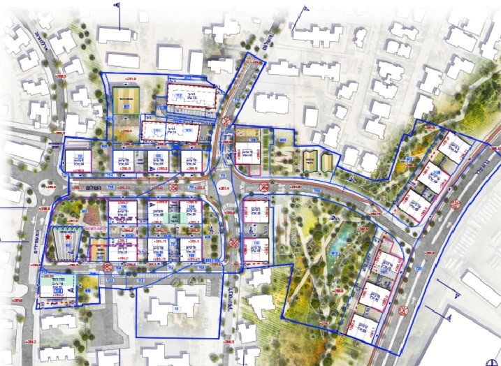
באר שבע – חברה מנהלת להקמת "מתחם אורות", פינוי בינוי

חברתנו משמשת כחברה מנהלת בפרויקט פינוי-בינוי בעיר באר שבע.

הפרויקט כולל שלבי ביצוע מורכבים, הכוללים פינוי מבנים קיימים והקמת מבנים חדשים לדיירים. בין היתר, מתוכנן חיבור רחוב דרך השלום לרחוב גרשפלד ופיתוח שטח ציבורי פתוח (שצ"פ) הקומנדו.

כל שלבי התכנון מתבצעים בתיאום ישיר עם היזמים, העירייה ומשרד החקלאות, במטרה להבטיח תכנון אופטימלי לכלל בעלי העניין ולהפחית למינימום את ההפרעה לסביבה הקיימת באזור.

הפרויקט נמצא כעת בשלב התכנון המוקדם.

הצצה לפרויקט

פרויקטים נוספים

תפריט נגישות